W tej kategorii zgłębiamy tajniki budownictwa oraz inspiracje dotyczące wnętrz, które mogą odmienić Twoją przestrzeń. Znajdziesz tu artykuły na temat nowoczesnych technik budowlanych, ekologicznych materiałów oraz najnowszych trendów w aranżacji wnętrz. Naszym celem jest dostarczenie wartościowych informacji, które pomogą Ci w realizacji Twoich projektów budowlanych i dekoratorskich. Zapraszamy do lektury, gdzie dzielimy się praktycznymi poradami, poradnikami oraz inspiracjami, które sprawią, że Twoje marzenia o idealnym domu staną się rzeczywistością. Niech nasza wiedza stanie się Twoim przewodnikiem w tej ekscytującej podróży!
Jak w prosty i bezpieczny sposób podłączyć hydrofor do istniejącej studni głębinowej? W poradniku znajdziesz informacje o doborze pompy i zbiornika oraz sposobie ich montażu i podłączenia do studni. Dowiesz się jak poprowadzić przewody i jak sprawdzić poprawność działania hydroforu.
Jak dobrać i zamontować kratki wentylacyjne zewnętrzne na komin? Przeczytaj poradnik i dowiedz się jakie modele kratek wybrać, z jakich materiałów i w jaki sposób poprawnie zamontować na zewnątrz budynku, by zapewnić prawidłową wentylację.
Nowoczesny domek narzędziowy - przewodnik po najlepszych projektach i inspiracjach do urządzenia funkcjonalnej przestrzeni na narzędzia. Sprawdź pomysły na aranżację, materiały budowlane i wyposażenie nowoczesnego domku.
Poradnik krok po kroku jak samodzielnie zamontować siatkę ogrodzeniową PCV lub metalową - przygotowanie siatki, mocowanie do słupków, łączenie paneli i narzędzia potrzebne do montażu.
Balustrady ażurowe metalowe montuje się na tarasach, balkonach i w ogrodzie. Dowiedz się jak dobrać odpowiedni materiał, wzór i kolor oraz jak poprawnie zamontować metalową balustradę.
Jak dobrać odpowiednie zawiasy bezprzylgowe do Twoich drzwi? Przeczytaj poradnik, w którym wyjaśniamy rodzaje i parametry zawiasów bezprzylgowych, sposób ich montażu krok po kroku oraz zalety i wady tego rozwiązania. Dowiedz się, na co zwrócić uwagę, aby cieszyć się funkcjonalnymi drzwiami bez szczeliny.
Płyta pilśniowa twarda 3 mm - przeczytaj ten artykuł, aby dowiedzieć się jak dobrać i zamontować płytę 3 mm na ściany i sufity. Poznaj różnice między płytą 3 mm i 5 mm. Porady eksperta.
Betonowy dywan to modny sposób na elegancką, a zarazem wytrzymałą posadzkę w domu. Dowiedz się, jak samodzielnie go wykonać, jakie wzory można ułożyć i jak prawidłowo dobrać kamienie.
Poznaj zasady prawidłowego wykonania przekroju płyty fundamentowej w zależności od warunków gruntowych. Dowiedz się jak dobrać grubość, zbrojenie i izolację płyty na żwirowcu, pod rurami wodnymi lub słabym gruncie. Unikaj typowych błędów przy betonowaniu i zbrojeniu.
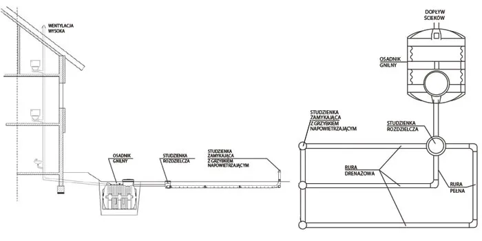
Montaż przydomowej oczyszczalni ścieków jest złożonym procesem wymagającym fachowej wiedzy. Przeczytaj poradnik i dowiedz się jak przygotować fundament, zamontować oczyszczalnię, wykonać instalację oraz podłączyć ją do budynku. Poznaj zasady regulacji i rozruchu urządzenia.
Marzysz o domu parterowym z dużymi oknami? Przeczytaj o zaletach i wadach dużych przeszkleń, wyborze odpowiednich okien i rolet, aranżacji oraz bezpieczeństwie domu z panoramicznymi widokami. Poznaj inspiracje i praktyczne wskazówki!
Przewodnik z praktycznymi poradami jak wybrać odpowiednią taśmę do klejenia folii paroizolacyjnej. Dowiesz się jakich parametrów szukać przy zakupie, aby zapewnić skuteczną i trwałą paroizolację w budynku.
Odkryj zalety drzwi z płyty meblowej! Poznaj ich różnorodność, trwałość i ekonomiczność. Dowiedz się, jak wybrać idealne drzwi do swojego domu i czy lamele to dobra alternatywa. Praktyczne porady i porównania.
Deski elewacyjne opalane ogniem to obecnie topowy trend w elewacjach. Sprawdź, jakie zalety ma opalane drewno oraz jak przygotować i zamontować deski, by uzyskać wyjątkowy, rustykalny wygląd.
Kołki rozporowe to świetne rozwiązanie do mocowania w drewnie. Dowiedz się jak wybrać odpowiedni rodzaj i rozmiar kołków. Poznaj zasady montażu krok po kroku. Sprawdź typowe zastosowania i błędy. Poradnik dla majsterkowiczów.
Ile kosztuje granitowy blat kuchenny za m2? Jakie czynniki wpływają na cenę? Jak obliczyć całkowity koszt zakupu blatu granitowego? Poradnik z aktualnymi cenami granitowych blatów kuchennych.
Schody z żywicy epoksydowej - jakie są zalety i wady takiego rozwiązania? Ile kosztuje inwestycja w schody żywiczne? Jak przygotować podłoże i ułożyć kolejne warstwy? Poradnik krok po kroku.
Mała wiata śmietnikowa to świetne rozwiązanie do ogrodu - schowa nieestetyczne pojemniki i uporządkuje przestrzeń. Przeczytaj o wyborze, montażu i aranżacji małej, funkcjonalnej wiaty śmietnikowej.
Przewodnik po piecach gazowych dwufunkcyjnych - jak wybrać najlepszy model, ile kosztuje, gdzie kupić oraz porady dotyczące montażu i eksploatacji. Dowiedz się jak połączyć ogrzewanie i produkcję c.w.u. w jednym nowoczesnym urządzeniu!
Drzwi ze świetlikiem to świetny sposób na doświetlenie przedpokoju. Jak wybrać najlepszy model? Sprawdź nasz poradnik - dowiesz się jak dobrać wymiary i szkło świetlika, na co zwrócić uwagę przy montażu oraz jak dbać o drzwi ze świetlikiem.
Kompleksowy poradnik krok po kroku, jak bezpiecznie i zgodnie z przepisami podłączyć agregat prądotwórczy do domowej instalacji elektrycznej - wybór odpowiedniego agregatu, sposoby montażu, uruchomienie oraz eksploatacja.
Kompletny poradnik jak wybrać, przygotować podłoże i położyć żywicę epoksydową w garażu. Dowiedz się jak dobrać grubość warstwy, mieszać składniki żywicy i usuwać pęcherzyki powietrza. Poznaj najlepsze żywice do garażu 2023.
Jak wykonać taras drewniany z zadaszeniem? Przewodnik krok po kroku - elementy konstrukcji, pomysły na zadaszenie, inspiracje i przykłady tarasów z drewna. Porady praktyczne dotyczące montażu i wykończenia.
Jaki sterownik do pieca na ekogroszek z podajnikiem wybrać, by zapewnić komfortowe i ekonomiczne ogrzewanie? Przeczytaj poradnik i dowiedz się na co zwrócić uwagę przy wyborze sterownika, jakie ma mieć funkcje i ile kosztuje. Poznaj ranking najlepszych sterowników w 2023 r.